Domačija Matavun 10
Lokacijski podatki
Poglej na:
Status
Objekt Domačija Matavun 10 pod evidenčno številko 9111 vodi Register nepremične kulturne dediščine.
Varstveni status: Zakon o regijskem parku Škocjanske jame (ZRPŠJ), Ur. l. RS, št. 57/96-3316, 63/97-3053
Pristojni zavod: ZVKDS OE Nova Gorica
Vir: Register nepremične kulturne dediščine
Ocena
Taksonomija o taksonomiji
Opis
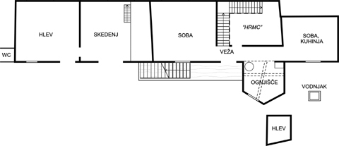
Domačija stoji v Matavunu, ob cesti, ki vodi proti Škocjanu. Umeščena je v brežino in obrnjena v odprto dvorišče (»borjač«), ki ni nikoli imel vhodnega portala. Dvorišče poteka vzporedno z ulico, od katere je dvignjeno z opornim zidom. Domačijo sestavlja enonadstropen niz stavbnih enot, ki se je začenjal z gospodarskimi poslopji in nadaljeval s stanovanjsko stavbo. Vsa poslopja imajo na pročelju okna s kamnitimi okvirji in kamnite portale. Portal v stanovanjsko poslopje je ravno zaključen in nosi letnico ter monogram C + 1815 + ZER. Glavni poudarek na fasadi stanovanjskega poslopja je šesteroosno zaključena »spahnjenca« oziroma kuhinjski prizidek z odprtim ognjiščem s piramidasto »skrlasto« streho ter večjim preprostim dimnikom. »Spahnjenca« ima na zahodni fasadi bogato profiliran poznogotski okenski okvir, ki je nastal okrog leta 1600. Ker je takšen okvir pogost na kraških cerkvah, je po vsej verjetnosti prenesen od drugod. Ob vzhodni fasadi »spahnjence« je kvadratno zidan vodnjak. Domačija je bila naseljena do leta 1968, novi lastniki pa so jo odkupili trideset let pozneje. Od leta 1996 kot eden od etnoloških spomenikov spada med zakonsko varovano nepremično kulturno dediščino na osrednjem območju parka Škocjanske jame, ki jo uvršča v svojo turistično ponudbo. Obnova domačije se je začela leta 2000. Z notranjimi preboji so bila gospodarska poslopja s stanovanjskim delom povezana v enotno poslopje s sobami, dnevnim prostorom, okrepčevalnico in ostalimi za gostinsko dejavnost potrebnimi prostori. Otvoritev domačije s sekundarno namembnostjo je bila leta 2006, s svojo ohranjeno zunanjostjo in ognjiščem pa zdaj predstavlja bivanjsko kulturo 19. in prve polovice 20. stoletja.
Spletne povezave
Strokovne reference in viri
- Kranjc, D. 2005: Moč prepoznavnosti, Predlog notranje opreme obnovljene zavarovane domačije. Slovensko etnološko društvo, Knjižnica Glasnika Slovenskega etnološkega društva 37. Ljubljana. [COBISS-ID 224006400]
Avtor zapisa
Darja Kranjc (Park Škocjanske jame), Mateja Habinc (Oddelek za etnologijo in kulturno antropologijo, Filozofska fakulteta, Univerza v Ljubljani)
Predlog citata
Kranjc, D.; Habinc, M. 2010: Domačija Matavun 10. DEDI - digitalna enciklopedija naravne in kulturne dediščine na Slovenskem, http://www.dedi.si/dediscina/12-domacija-matavun-10.


